士幌町・中古住宅詳細おすすめ
| 種類 | 売・中古住宅 |
|---|---|
| 売買価格 | 800万円 |
| 所在地 | 河東郡士幌町字士幌幹線155-69 |
| 交通 | 車圏 |
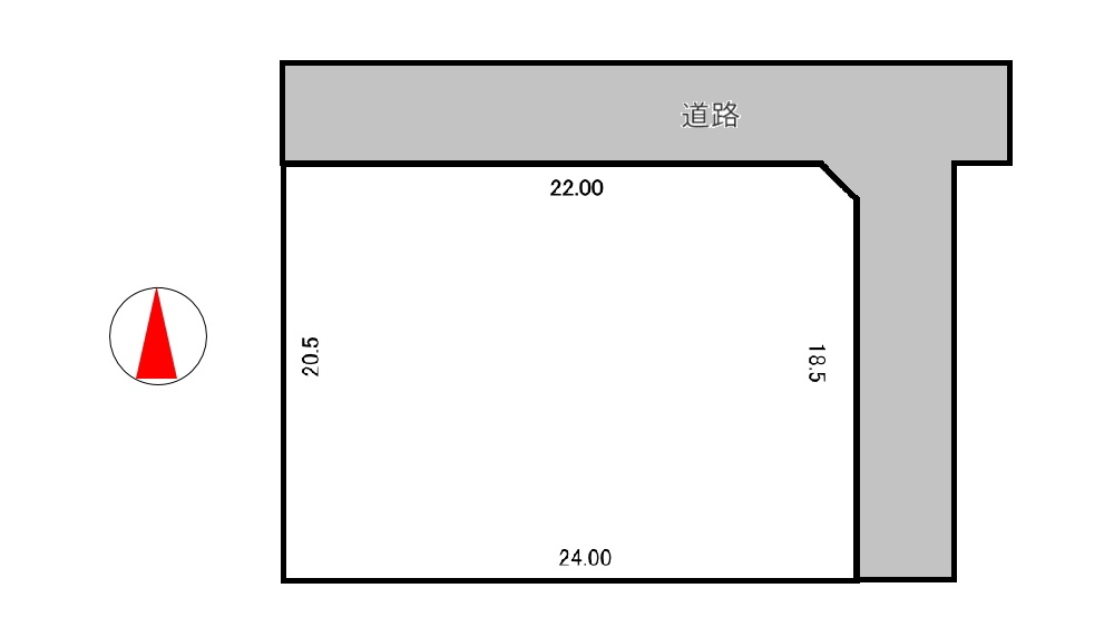
| 土地面積 | 490㎡(148.225坪) |
| 用途地域 | 用途地域の指定はありません |
| 地勢 | 平坦 |
| 地目 | 宅地 |
| 建ペイ率 | --- |
| 容積率 | --- |
| 土地形状 | 東西 24m 南北 20m |
| 道路復員 | 東側 9.0m |
| 建物種類 | 居宅 |
| 構造 | 木造鋼板葺平屋建 |
| 床面積 | 1階 63.34㎡・2階 34.78㎡ |
| 建築時期 | 平成10年6月23日新築 |
| 取引形態 | 仲介 |
| 備考 | 現在居住中内覧は事前に予約をお願いします。 |
| 地図 |













